![]() |
若您無法觀看完整電子報 請點選此連結 |
||||||||||||||||||||||
![]() |
![]() |
||||||||||||||||||||||
![]() |
|||||||||||||||||||||||
| 物業夥伴電子報 第150期102.08.09 | |||||||||||||||||||||||
| 真禾機電製作 這是一份與物業服務業夥伴們分享訊息的園地 | |||||||||||||||||||||||
www.truemind.com.tw 真誠以心 用心服務 |
|||||||||||||||||||||||
台北市光復南路45巷16號‧TEL: 02-27455000 ‧FAX: 02-37653235 |
|||||||||||||||||||||||
| 新竹縣竹北市縣政一街104號‧TEL: 03-6571333‧ FAX: 03-6571332 | |||||||||||||||||||||||
| 台中市崇倫北街36號‧TEL: 04-23786686 ‧ FAX:04-23716113 | |||||||||||||||||||||||
| 歡迎轉寄 索取訂閱 | |||||||||||||||||||||||
| >>機電設備專欄 | |||||||||||||||||||||||
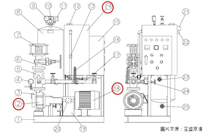
消防泵浦補充水槽維護更新實例 |
|||||||||||||||||||||||
台中工務經理 陳永斌(甲電20380、防火管理人99防初訓字第6805號) |
|||||||||||||||||||||||
| 幾乎所有大樓都有各式消防泵浦,例如幾乎都有室內消防栓、11層以上會有灑水、地下室有泡沫。這些消防水滅火系統都需要靠消防泵浦來供應水壓。 | |||||||||||||||||||||||
|
|||||||||||||||||||||||
![]() |
|||||||||||||||||||||||
![]() |
|||||||||||||||||||||||
| >>夥伴問題精選 | |||||||||||||||||||||||
公寓大廈組織報備表單 |
|||||||||||||||||||||||
| 公寓大廈組織報備有三個時機點,第一次成立管理組織(亦為起造人依照公寓大廈管理條例28條召集之區分所有權人會議中選任管理委員)、定期改選(任期一至二年)、以及臨時改選三種時機。 | |||||||||||||||||||||||
| 在組織成立或變更時,應向主管機關報備。相關書表可參考台北市政府下載網站, 其中有首次報備與改選報備等多項相關書表,可提供參考。 | |||||||||||||||||||||||
|
|||||||||||||||||||||||
![]() |
|||||||||||||||||||||||
![]() |
|||||||||||||||||||||||
| >>教育訓練資訊 | |||||||||||||||||||||||
| 閱讀推薦 | |||||||||||||||||||||||
| 一、 | 高雄市公寓大廈管理實務彙編,下載網址:高雄市政府 | ||||||||||||||||||||||
![]() |
|||||||||||||||||||||||
| 二、 | 室內裝修100問,下載網址:台北市政府 | ||||||||||||||||||||||
![]() |
|||||||||||||||||||||||
![]() |
|||||||||||||||||||||||
![]() |
|||||||||||||||||||||||
| >>教育訓練資訊 | |||||||||||||||||||||||
華夏技術學院招生訊息 |
|||||||||||||||||||||||
![]() |
|||||||||||||||||||||||
![]() |
|||||||||||||||||||||||
![]() |
|||||||||||||||||||||||